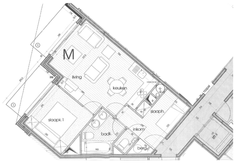
Indeling van het appartement

Het appartement bestaat uit een woonruimte met open keuken en terras. In de woonruimte is een er een slaapbank voorzien. In de keuken is er servies voorzien en ook de nodige apparaten zijn aanwezig. Verder bestaat het appartement uit 2 slaapkamers met waarvan 1 met stapelbed en 1 met dubbel bed en terras. De badkamer heeft een douche/bad, toilet en 2 lavabo’s. Er is ook nog een apart toilet.

Vanuit de slaapkamer en de woonkamer heb je een zijdelings zicht op de zee, de havengeul en het natuurreservaat met vuurtoren

klik op de afbeelding om te vergroten

Faciliteiten

Algemeen

  • Het appartement bevindt zich op de 2e verdieping
  • Wi-Fi en digitale TV zijn aanwezig
  • fietsenberging kan gebruikt worden

huisdieren zijn niet toegelaten

 

Woonkamer
  • slaapbank
  • digitale TV
  • radio
  • terras met tuinmeubilair
 
Slaapkamer 1
  • terras
  • dubbel bed 140 cm
  • kleerkasten
  • donsdeken
 
Slaapkamer 2
  • terras
  • stapelbed
  • kleerkasten
  • donsdekens

 

 
Badkamer
  • douche/bad combinatie
  • toilet
  • dubbele wastafel

 

Open keuken
  • servies
  • vaatwas
  • combi-oven
  • koelkast met vriesvak
  • koffiezet
  • kookplaat
  • waterkoker